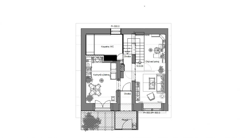
Návrh rekonstrukce venkovského domku Pohled-na-okno Obývací-část Pohled-na-schodiště Obývací-část-2 Na-linku Kysice-pudorys