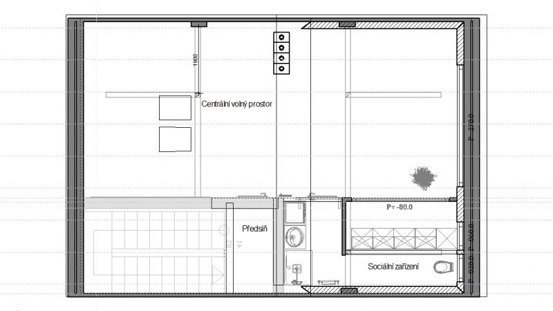
Dispoziční řešení půdního prostoru s požadavky na velký otevřený prostor, malou kuchyňku a sociální vybavení pohled 3 pohled 1 pohled 2 pohled 4 Skalni pristavba 1 Vzorkovnice - umyvadla Nový půdorys půdního prostoru