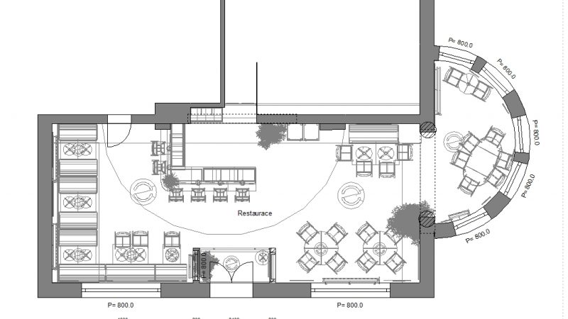
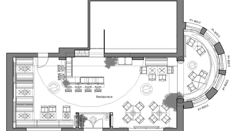
Návrh interiéru pizzerie v prostorách bývalého hostince Pizzerie - pohled 1 Pohled od vchodu Pohled 4 Pohled 3 Bar Pohled 2 Pristavba pizzerie - pudorys A pudorys B