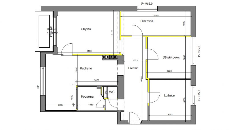
Návrh dispozičního řešení včetně kuchyňské linky, spolupráce při realizaci Mirova - linka Linka - varianta dekorů Mirova - linka 2 Mirova - linka 3 vest. skrin Nová dispozice Původní stav