Přeskočit na navigaci
Přeskočit na obsah
Přeskočit na patičku
Design Schneiderová — Návrhy a realizace interiérů, Plzeň
Zavřít
Úvod
Blog
Nabídka služeb
Galerie prací
K prodeji
O mně
Kontakt
Navigace
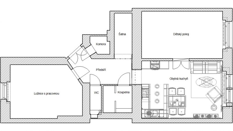
Rekonstrukce bytu pro kaktusáře
2009
Praha, Miramar
4
Návrh nové dispozice a vybavení
4
3
2
1
Novy-pudorys
Miramar-puvodni-pudorys
Zavřít (Esc)
Přepnout na celou obrazovku
Přiblížit/oddálit
Předchozí
Další