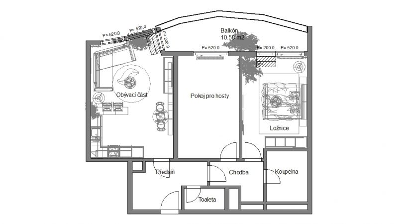
Návrh vybavení interiéru v bytovém domě Sedmikráska Pokoj-1-1 Pokoj-2-1 Pokoj-3-1 Pokoj-4-1 Ložnice-1-2 Ložnice-2-2 Ložnice-3-2 Půdorys-bytu IMG_1401 IMG_1411