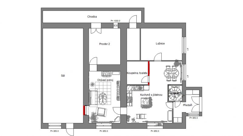
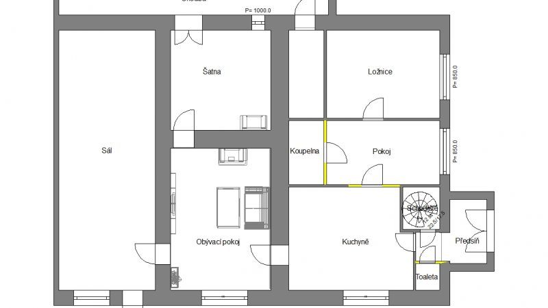
Návrh změny dispozice a vybavení Šumava-na-schodiště-1 Linka-1 Linka-3-1 Linka 2 Obývací-pokoj Obývací-pokoj-2 Obývací-pokoj-3 Šumava-změna-původní-dispozice Šumava-změna-půdorysu