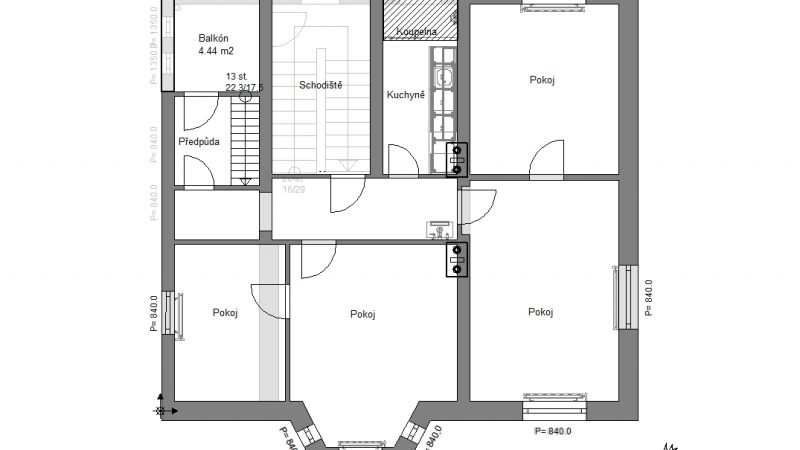
Studie změny dispozice pro prodej nemovitosti realitní kanceláří 3-5 1-5 4-5 5-4 7-1 6-2 9-1 8-2 12 11 10 13 Soucasny-stav Novy-pudorys IMGP2653 IMG_3667